Informatie

1972

Bouwjaar

148 m2

Woonoppervlakte

367 m2

Perceeloppervlakte

4

Slaapkamers

de Ruyterstraat 6, Koudekerke

Uniek, ruim en verrassend. Deze drie woorden kenmerken deze vrijstaande woning. Let goed op want er is meer dan u in eerste instantie ziet. Onder de bovengrondse woonlaag zit nog een laag die nagenoeg even groot is als de bovengrondse woonlaag! Naast vier slaapkamers, woonkeuken, riante woonkamer en een badkamer is er dus nog een keer een vergelijkbare ruimte bestaand uit een bijkeuken, zeer ruime garage, twee extra (werk)kamers en immens veel bergruimte. In combinatie met een zonnige tuin en ruime oprit is dit een huis dat zeker geen twaalf in een dozijn is. Niet twijfelen dus, maar binnen komen kijken. Laat je verrassen door dit object.

WOONLAAG
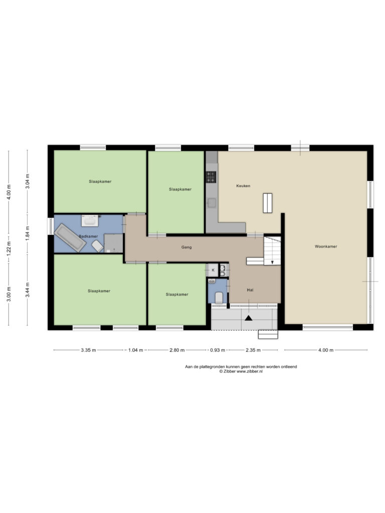
Woonkamer en keuken vormen samen bijna 50m² aan woonoppervlakte. Het niveauverschil tussen woonkamer en woonkeuken geeft deze ruimtes net even wat meer cachet. De woonkamer kenmerkt zich door veel lichtinval en is voorzien van een deur naar het terras. De keuken is voorzien van een vaatwasser, oven, magnetron, gaskookplaat en koelkast. Door de ruimte kan deze prima dienst doen als woonkeuken.

Maar liefst vier (slaap)kamers op de eerste woonlaag zorgen ervoor dat deze woning geschikt is voor een brede doelgroep. Of je nu ruimte zoekt voor je gezin of juist een (thuis)werkplek zoekt, het kan hier allemaal. De kamers zijn ruim van opzet en daardoor goed bruikbaar. De badkamer is voorzien van een ligbad, toilet, douche en wastafelmeubel. In de hal is eveneens nog een separaat toilet.

SOUTERRAIN
Via de hal geeft een trap toegang tot het souterrain. Deze is ingedeeld in vijf verschillende ruimtes. Er is een bijkeuken met witgoedaansluiting en verder twee (werk)kamers (uiteraard ook prima voor de hobby, of misschien als slaapkamer?), een zeer ruime, maar wat lage, bergruimte en een garage van verrassend grote omvang. De garage is voorzien van verwarming, water, elektra en een garagedeur. De eerder benoemde bergruimte zou je kunnen zien als een uit de kluiten gewassen bergzolder, ideaal voor de opslag van goederen.

TUIN EN OPRIT
Het hoofddeel van de tuin is gesitueerd op het zuiden en aan deze zijde dan ook voorzien van een terras, borders en een fijne veranda. Deze veranda zorgt ervoor dat je zowel lekker in als ook uit de zon kunt zitten. Ook zorgt een groene haag voor de nodige privacy. Parkeren kan aan de straat maar nog beter op de eigen oprit. Deze kan zeker wel drie auto’s herbergen.

GOED OM TE WETEN
-Nieuwe meterkast uit 2020
-Voorzien van dak-, muur- en deels vloerisolatie
-Deels voorzien van HR++ beglazing
-Buitenschilderwerk uitgevoerd in 2024/2025
-Oplevering in onderling overleg.

OMGEVING
Met ruim 3.400 inwoners is Koudekerke de grootste kern van de gemeente Veere. Het dorp biedt uitgebreide voorzieningen, waaronder twee basisscholen, sportfaciliteiten, winkels en een actief verenigingsleven. Bovendien ligt het strand van Dishoek op loopafstand en zijn Middelburg en Vlissingen snel bereikbaar.

Interesse?
Maak een afspraak voor een bezichtiging. Onze makelaar leidt u graag rond en laat u de mogelijkheden van deze unieke woning zelf ervaren.

Deze informatie is door ons met de nodige zorgvuldigheid samengesteld. Onzerzijds wordt echter geen enkele aansprakelijkheid aanvaard voor enige onvolledigheid, onjuistheid of anderszins, dan wel de gevolgen daarvan. Alle opgegeven maten en oppervlakten zijn indicatief. Van toepassing zijn de NVM voorwaarden.

Locatie en omgeving
Specificaties woning
Bouw
Soort woonhuis: Vrijstaande woning
Bouwjaar: 1972

Oppervlakte en inhoud
Woonoppervlakte: 148 m2
Perceeloppervlakte: 367 m2
Inhoud: 735 m3

Buitenruimte
Gebouwgebonden buitenruimte: 0 m2
Tuin: Tuin rondom

Energie:
Verwarming: Hete lucht verwarming
Isolatie: Dakisolatie, Muurisolatie, Vloerisolatie, HR glas
Energielabel: C

Garage
Soort garage: Inpandig
Praktisch
Deel deze woning

Heeft u een vraag?

Wij begrijpen dat de huizenmarkt niet voor iedereen vertrouwd terrein is. Gelukkig kennen wij de markt als onze broekzak! Wij helpen u graag met al uw vragen. Neem geheel vrijblijvend contact met ons op!

Stel uw vraag