Vraagprijs € 149.500,- k.k.
Informatie

1899

Bouwjaar

81 m2

Woonoppervlakte

96 m2

Perceeloppervlakte

3

Slaapkamers

Clijverstraat 49 , Vlissingen

Klussers opgelet! Ben jij op zoek naar een woning die je volledig naar eigen smaak kunt moderniseren? Lees dan snel verder!

WONEN
De woning beschikt momenteel over een voor- en achterkamer met openslaande deuren.
Wat direct opvalt, is het hoge plafond dat zorgt voor een ruimtelijk gevoel. In de aanbouw bevindt zich de keukenruimte met een aansluiting voor witgoed. Daarnaast is er op de begane grond een badkamer met zitbad, wastafel en toilet.
Een ruime hal en praktische trapkast maken het geheel compleet.

SLAPEN
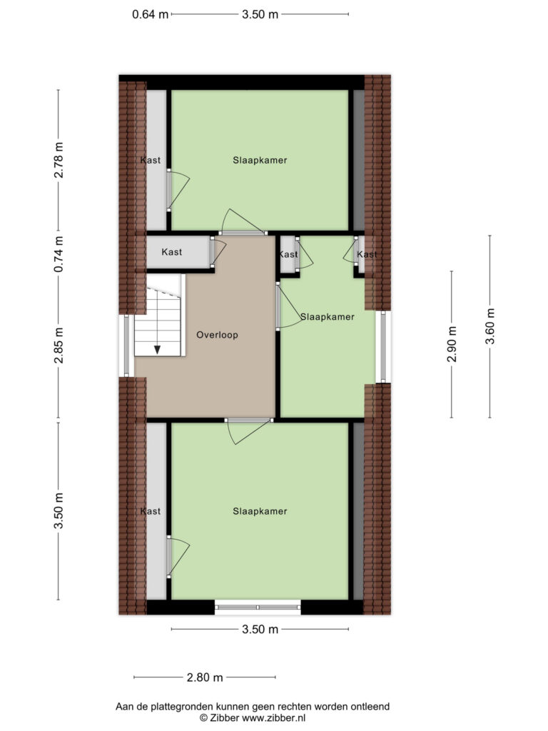
Op de eerste verdieping bevinden zich drie slaapkamers van verschillende afmetingen, allemaal voorzien van een inbouwkast. Verder is er een ruime overloop en een handige bergkast.

TUIN
Via de openslaande deuren in de woonkamer loop je zo de tuin in. In de tuin staat een stenen berging en is er divers groen aanwezig, een fijne plek om iets moois van te maken.

Kortom, een woning met volop mogelijkheden! Zie jij de potentie? Neem dan contact met ons op voor het maken van een afspraak.

GOED OM TE WETEN
– Geiser voor warm water.
– Verwarming door middel van gaskachels.
– Deels voorzien van kunststof kozijnen
– Oplevering in onderling overleg, dit kan op korte termijn.

VERDUURZAMEN?
Wilt u de woning verduurzamen? Let op er zijn diverse (landelijke maar ook gemeentelijke) subsidie potjes dan wel leningen met een lage rente beschikbaar. Vraag onze makelaars naar de mogelijkheden.

OMGEVING
Vlissingen is een stad aan zee en heeft veel te bieden. Wat dacht u van de prachtige boulevard, de duinen en de stranden? Tevens zijn er diverse scholen en supermarkten op fietsafstand te bereiken, voor de sportliefhebber bevindt zich Sportpark Bonedijke op loopafstand van de woning. Door de gunstige ligging van Vlissingen zijn steden als Breda, Rotterdam en Antwerpen in circa 1 uur bereikbaar. Middelburg is binnen tien autominuten te bereiken, Goes in circa vijfentwintig minuten.

Interesse?
Een van onze makelaars leidt u graag rond.

Deze informatie is met zorg samengesteld, maar wij aanvaarden geen aansprakelijkheid voor eventuele onvolledigheden, onjuistheden of de gevolgen daarvan. Alle opgegeven maten en oppervlakten zijn indicatief. De NVM-voorwaarden zijn van toepassing.

Locatie en omgeving
Specificaties woning
Bouw
Soort woonhuis: tussenwoning
Bouwjaar: 1899

Oppervlakte en inhoud
Woonoppervlakte: 81 m2
Perceeloppervlakte: 96 m2
Inhoud: 360 m3

Buitenruimte
Gebouwgebonden buitenruimte:
Tuin: achtertuin

Energie:
Energielabel: G

Garage
Soort garage: geen garage
Praktisch
Deel deze woning

Heeft u een vraag?

Wij begrijpen dat de huizenmarkt niet voor iedereen vertrouwd terrein is. Gelukkig kennen wij de markt als onze broekzak! Wij helpen u graag met al uw vragen. Neem geheel vrijblijvend contact met ons op!

Stel uw vraag