Informatie

1998

Bouwjaar

139 m2

Woonoppervlakte

500 m2

Perceeloppervlakte

2

Slaapkamers

de Spaier 10, Zoutelande

Vrijstaande woning met zeer veel leefruimte op de begane grond, een ruime garage en gelegen op een fraaie en rustige woonlocatie aan de rand van Zoutelande. Keuken en badkamer zijn een aantal jaar geleden gemoderniseerd en daarmee modern. Deze woning is instapklaar en goed onderhouden. Daarnaast is de woonlocatie zeer goed. De veranda aan de achterzijde zorgt ervoor dat het in de tuin ook heerlijk verblijven is. Kom binnenkijken en wij vertellen u graag alles over deze unieke woning.

WONEN
Woonkamer en keuken vormen samen een leefruimte van maar liefst circa 63m²! Door de u-vorm is deze ruimte fijn en ruimte technisch goed verdeeld in een living, eetgedeelte en luxe keuken. Door diverse raampartijen is er volop daglichttoetreding. Ook zijn er diverse toegangsdeuren naar tuin en terras. De fraaie plavuizen vloer met vloerverwarming maakt de woonruimte af.

In 2018 is de keuken vernieuwd. Met de aanwezigheid van een gaskookplaat, koelkast, vriezer, magnetron, vaatwasser en oven is er aan alles gedacht. Vanuit de keuken is er toegang naar de praktische bijkeuken met witgoedaansluiting. De bijkeuken biedt op zijn beurt weer toegang aan de garage.

Het levensloopbestendig maken van de woning behoort bij de mogelijkheden. Daarom hebben wij in de presentatie alvast een optie plattegrond opgenomen zodat u hier een beeld van kunt krijgen.

EERSTE VERDIEPING
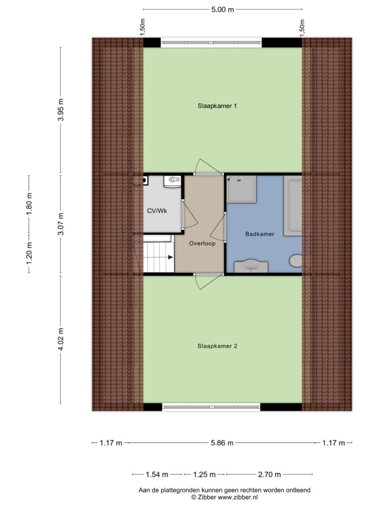
Op de eerste verdieping zijn twee ruime slaapkamers aanwezig. Beide kamers zijn ruim van opzet en er is op een handige manier nagedacht over inbouwkasten. Mocht u meer kamers willen creëren? Ook hiervoor hebben we een optie plattegrond opgenomen. De complete badkamer, uit 2017, is voorzien van een ligbad, inloopdouche, toilet en dubbel wastafelmeubel. Heel praktisch is de ruime berging met cv-opstelling. Deze ruimte maakt de verdieping compleet.

GARAGE EN TUIN
Handig en ruim (ca. 21m²) is de garage. Er is verwarming en water aanwezig. Een loopdeur zorgt voor ontsluiting naar de achtertuin. Ideaal als u ervoor kiest om de auto binnen te zetten. Deze kunt echter ook op de eigen oprit aan de voorzijde parkeren.

Aan de achterzijde is er een unieke veranda aangebouwd. Stel dat het in de loop van de avond wat kouder wordt of de wind komt opzetten dan kunt u toch blijven zitten. Via een afstandsbediening is het namelijk mogelijk om de veranda (deels) te sluiten.

De tuin maakt een verzorgde en onderhoudsvriendelijke indruk. Door situering van de achtertuin op het zuidoosten is er altijd wel een plaatsje om in of juist uit de zon te zitten. Verder is de tuin een mooie afwisseling van borders, hagen, grind en terras. Wat opvalt is de hoge mate van privacy in de achtertuin. Aan de achterzijde grenst de tuin aan het openbare groen waardoor er veel afstand is richting de opvolgende bebouwing.

GOED OM TE WETEN
-12 zonnepanelen uit circa 2018.
-Volledige geïsoleerd, energielabel A.
-Vloerverwarming op de begane grond.
-Oplevering in onderling overleg.

GOED NIEUWS VOOR UW HYPOTHEEK
-Deze woning beschikt over een energielabel A, dit betekent dat u, op basis van dit energielabel mogelijk € 10.000,- meer kunt lenen dan u vermoedelijk verwacht. Ook kan rentekorting van toepassing zijn. Vraag bij uw hypotheekadviseur naar de voorwaarden.

Interesse? Eén van onze makelaars leidt u graag rond.

Zoutelande is gelegen in de gemeente Veere onder aan de voet van de duinen tegenaan de Noordzee. De toeristische dorpskern beschikt over diverse voorzieningen en gezellige restaurantjes. Het is gunstig gelegen ten opzichte van steden als Middelburg en Vlissingen en het mondaine Domburg. Zoutelande wordt, samen met het strand van Dishoek en Westkapelle, ook wel de Zeeuwse Rivièra genoemd. Dit omdat er weinig andere Nederlandse stranden op het zuiden zijn gelegen. Het behoort tot de meest bezochte badplaatsen aan de Zeeuwse kust. Er is een zeer uitgebreide middenstand.

Deze informatie is door ons met de nodige zorgvuldigheid samengesteld. Onzerzijds wordt echter geen enkele aansprakelijkheid aanvaard voor enige onvolledigheid, onjuistheid of anderszins, dan wel de gevolgen daarvan. Alle opgegeven maten en oppervlakten zijn indicatief. Van toepassing zijn de NVM voorwaarden.

Locatie en omgeving
Specificaties woning
Bouw
Soort woonhuis: Vrijstaande woning
Bouwjaar: 1998

Oppervlakte en inhoud
Woonoppervlakte: 139 m2
Perceeloppervlakte: 500 m2
Inhoud: 550 m3

Buitenruimte
Gebouwgebonden buitenruimte: 33 m2
Tuin: Tuin rondom

Energie:
Verwarming: CV ketel, Vloerverwarming gedeeltelijk
Isolatie: Dakisolatie, Muurisolatie, Vloerisolatie, HR glas
Energielabel: A

Garage
Soort garage: Aangebouwd steen
Praktisch
Deel deze woning

Heeft u een vraag?

Wij begrijpen dat de huizenmarkt niet voor iedereen vertrouwd terrein is. Gelukkig kennen wij de markt als onze broekzak! Wij helpen u graag met al uw vragen. Neem geheel vrijblijvend contact met ons op!

Stel uw vraag